I hope this works! Today is the third and most likely final installment of our inefficient condo layout. Below, clicking the anchor link will take you part 3.
There is another link that will take you to part 2.
OR, if you’re landing here for the first time, or wish to review, please begin from the top of the page.
Part 3 Begins Here
Hi Everyone,
Please enjoy parts 1 & 2, and yes, I’ve already spoiled the surprise but I changed yet another spiral into a normal staircase. Except this one is not a straight run staircase. It’s an L, which actually takes up a bit more room. However, because of the configuration upstairs, we need to make a turn.
If you missed part 1 please start from the top. Otherwise, please click the link below to skip ahead to part 2.
Part 2 Begins Here
Hi Everyone,
Oh, how I love looking at Boston real estate. There are so many fantastic homes.
And… also a bunch that are in sore need of a renovation.
The problem, as we’ve gone over ad nauseum in my own place, is that these one and two-bedroom condos from 800 – 1600 square feet were never meant to be broken up as they are. No, they are the vestiges of what was once a reception area, a dining room and in my case, the kitchen. (now my bedroom)
In addition, the time when most of these places became broken up like this was the latter part of the 20th century with the height in the late 70s and 80s. The same thing was happening in New York City. Of course, changes are happening all the time. In fact, many buildings that were broken up into sometimes as many as 12 units have recently reverted to one-family homes.
For today, I found a frustratingly inefficient condo that could use some help. So, let’s fix this place!
The apartment we’re about to see is really lovely. It’s on Beacon Street, and actually, the sale closed at the end of December, although I began working on this weeks before that.
Let’s take a look at this one-bedroom, two-bath condo in Boston’s Back Bay.
We’ll begin with the floor plans and a couple of images. For more images, please check out the real estate listing here.
There’s also a video, if you’d like a virtual tour.
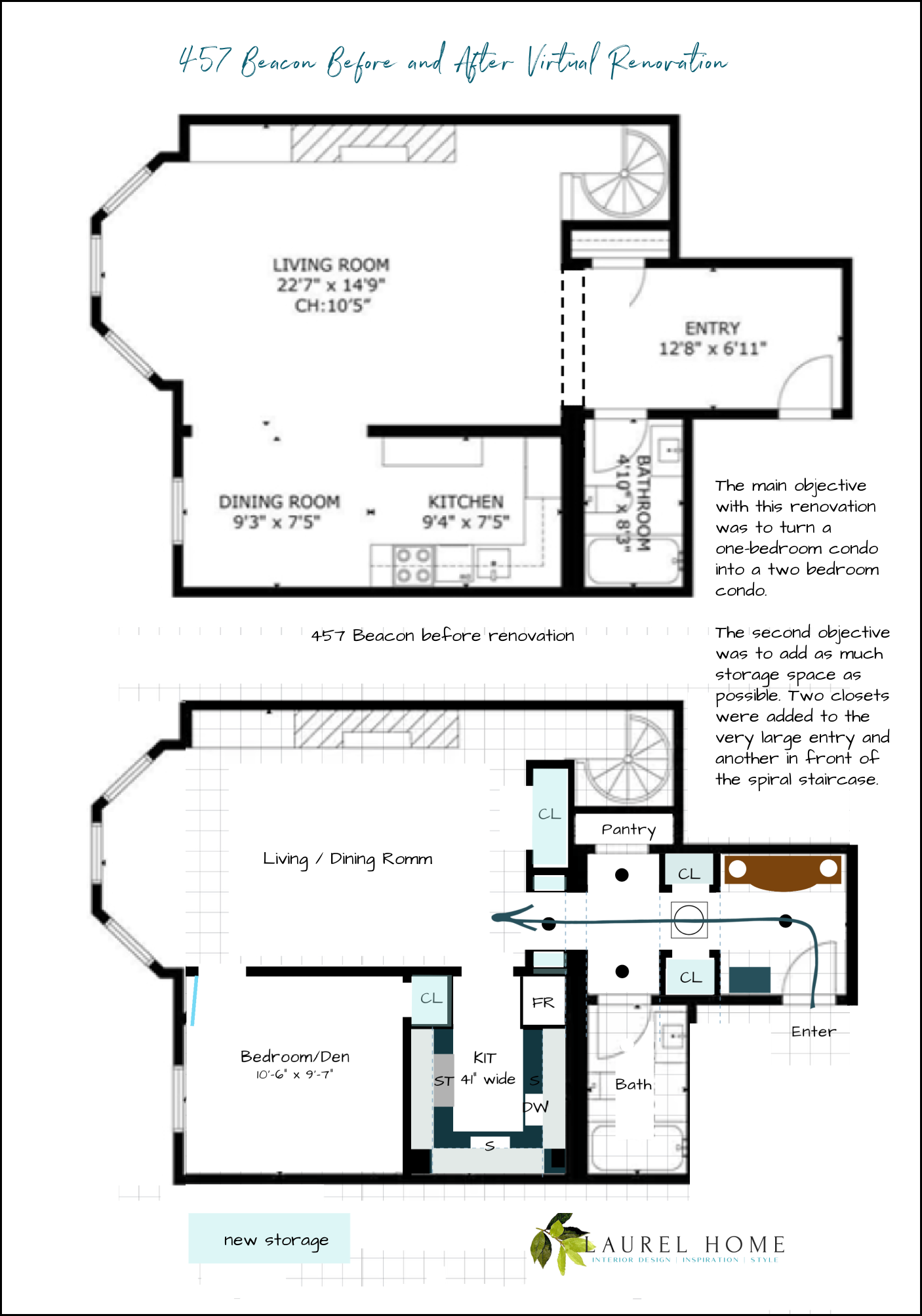
Below is the Upper level
![]()
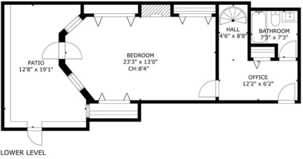
Below is the Lower Level
![]()
What this one-bedroom condo has going for it:
- It’s move-in ready
- There’s an available parking spot; however, it’s not clear if there’s an extra fee for it.
- The Bedroom is spacious with a place for working
- There’s a fairly good-sized garden, they’re calling a backyard. haha.
- The kitchen appliances are new.
- There’s a large, lovely entrance.
![]()
The liabilities of this inefficient condo layout.
I will begin with one that a newcomer might not realize. It’s on the far western end of Boston’s Back Bay, and that means hordes of students about eight months out of the year. This is at the edge of Boston University and the Berklee College of Music. North Eastern is also a stone’s throw away.
Do students live in $1,200,000 condos, Laurel?
I know of one situation.
Waaaay back, circa 2007, when I was still married, and Cale was a senior in high school, I had a client in the same school district as us, who had a daughter Cale’s age and another daughter who was going to be starting dental school at Tufts University. (In Boston) Her wealthy parents bought her a two-bedroom condo in Back Bay.
Guess who helped furnish it? ;]
They figured it was cheaper for them to do that and then have a place to stay when they visited Boston. After she was done, the plan was to sell it.
Otherwise, it’s pretty rare; however, many of the houses are set up for student rentals.
More liabilities for this one bedroom condo.
- It’s a one-bedroom condo. Ahh, we’ve been through this before.
- There’s a paucity (one of my wasband’s favorite words) of storage upstairs.* (We’ve covered this one too, in this Boston condo.) I mean, there isn’t even a place to hang one’s coat, except for one very shallow closet.
- Yes, there’s yet another spiral staircase. I’m not planning on touching that one because I have far larger fish to fry here.* Besides, in this case, the spiral is totally out of the way, and the configuration for a normal staircase would be awkward at best. Is it possible? Yes, I think so, but I’m not sure if the cost would be justified.
- The kitchen is old and sucks.

There’s an odd sitting space off the kitchen. At the very least, it seems they should have staged that as the dining area. However, I guess this is instead of the usually unnecessary island or peninsula with 2-3 stools.
![]()
Today, I am going to fix this inefficient condo layout!
And, I will say up front, this has been one of the most satisfying “let’s fix the place.”
The entry is huuuuuuuge. I mean, there are apartments in Tokyo smaller than this monster space.
But, Laurel, isn’t a large, beautiful entrance an asset?
Sure, if they owned the entire house. But they don’t.
Besides, we aren’t actually reducing the size of the entry; we are adding desperately needed storage. It will still be spacious, and even better, more architecturally interesting.
The next obvious alteration is to turn that funky sitting area into a small bedroom or den.
My condo has the same configuration, only mine doesn’t share it with a kitchen.
For funsies, let’s look at how my place was when I purchased it in 2020.

At the bottom right is my den/2nd bedroom
.
But, what about the kitchen, Laurel?Â
What about it? It needs to be decimated.
No, how will people get into the kitchen? Are they supposed to enter through the bedroom?Â
Well, that would be possible, but not very practical and also not necessary.
Okay, it’s time to unveil the new layout of the newly minted 2-bedroom condo. Sorry, I couldn’t fit the end windows and walls on my graph paper. But you’ll see them in a sec.
![]()
Below, I made a graphic so you could more easily compare the two versions. I have not furnished yet, except for the entry.
We’ll continue after the graphic with the changes to the virtually renovated, now 2-bedroom condo.
![]()
All of the light blue closets represent all of the additional storage.
We come in the same, of course, to a 7′ x 7′ entry which is about 50% larger than the one I have (not including the closet), so plenty big. However, the entry doesn’t end there. Instead of space, we carved out two closets. The part not expressed correctly is something like my lower entry center section, which is raised. But instead of raised, there will be beams surrounding the square. The circle is a light fixture.
Then, the entry grows to full width again for about 3.5′. And finally, shrinks back to the small size flanked by either shallow cabinets or open bookshelves!
After that, we make an immediate left into the new kitchen with soapstone counters.
Walking out of the kitchen, we walk through the living room, and as you can see, the wall was moved up as it is on the other side of the room. This makes for better symmetry and also adds some needed space for the small bedroom. Finally, we borrowed some space from the kitchen to create a small closet.
Would this add to the value of the property, Laurel?Â
It sure would, and it would also raise their taxes a bit, and most likely common charges. However, the common charges in this building are quite low to begin with.
Do you know how much more it would be worth?Â
I don’t know exactly, but most likely enough to cover the renovation.
What about the downstairs? Isn’t it also inefficient?
Yes, it needs help too. But, it’s not as much of an issue as the upstairs. If you’d like to see what I have in mind, I’ll do that and also put in some furniture with a new color palette and sources.
You might enjoy this post about a Florida condo that needs some help, too.
xo,

*********************************************************
Part 2 Begins Here
Wed. Jan 14, 2026
Hi Everyone,
I have worked out the floor plan of the Beacon Street condo with furnishing ideas. That takes a long time to put together. And if it were real life, it would take days longer. Maybe even years.
Then, I took a look at the downstairs, and I do see a way to do a staircase.
However, that would need to be a separate post. I’m not doing that for this post as I’m not sure if there’s enough interest. In most cases, unless you’re in the field, you’ll hire someone to figure that out. For me, though, it’s a helluva lot of fun.
I’m not sure that changing the staircase increases the value all that much, but it does increase the salability. The other thing to remember is that I know from my experience is that there is a building staircase to the lower level. There must be an egress to the exterior, and no, the door to the patio is insufficient. Besides, the upstairs neighbors need to be able to get out from the back of the building.
![]()
Looking at the floor plan of the lower level, we can see that the egress door is below the bathroom.
That is a door to a common hallway which leads to the exterior of the building. In fact, it’s pretty much the mirror image of where my new door is located in my building.
Therefore, if needing to move furniture, large suitcases, and anything large, the building staircase, which is never a spiral, would be the way to go.
Oh, why so glum? It’s too much to walk outside the unit to use the “common” staircase?
Five hours later… ;]
Okaaaaaaaay, I’m saving the floor plan with all of the beautiful furniture, and instead, I did it! I changed the staircase! The thing is that I think I like the other entry better. You can tell me what you think.
I did a floorplan for the upstairs and downstairs, with the new staircase. However, I didn’t do a downstairs version with the spiral.
I feel the bedroom is way too big.
Yes, yes, yes… You guys in Texas. I realize the entire lower level is the size of one of your closets. haha
However, I love my bedroom now that we shrunk it down by four feet.
Yes, there’s a lot of storage; however, I’d love to put in a laundry center and another closet.
Alright, here is the revised floorplan starting from upstairs.
![]()
Of course, we enter as before. The niche for the sideboard is about a foot bigger, so we can put in a larger piece. It could also be a chest flanked by two extra dining chairs.
Instead of another closet, I added a 60″ settee no more than two feet deep. That piece could also be a china cabinet or bookcase.
Following that is a pantry and then a utility closet.
And, yes, I added some embrasure doors if you’re just tuning in, oh my! (Clicking that link will get you up-to-speed.)

My bedroom embrasure doors, which close off the bedroom. There is another set for the bathroom. I adore them, and they are very easy to operate.

The view from the staircase.

The ceiling detail.
BTW, I’m almost finished with my complete source list for the entire renovation. It will be linked to in the main menu.
Returning to the floorplan!
![]()
Then, we round the bend into the living room and before the new staircase is another closet. This is a coat closet which is typically 24″-26″. This would’ve been more than three feet, so I created a hidden storage door on the staircase.
Laurel, did you try going down from the main entry instead of by the fireplace?
AAMOF, I did. I’ll show you that one first.
This is the lower level.
![]()
You will land almost four feet from the new wall I pushed back. It feels a bit cramped and isn’t helping with storage. I could fiddle with it some more; however, let’s look at this version from upstairs. (below) This was the first one I tried, so it’s very messy.
I didn’t realize at that point that the fireplace masonry is different than upstairs and allows for more space at the bottom.
That is why you’re seeing a double-winder staircase.
![]()
I don’t have a strong preference upstairs. Obviously, I’d have to make more changes.
Let’s look one more time at the new staircase that begins by the fireplace again from upstairs. (below)
This is the one I spent the most time on.
![]()
And now let’s look at how this staircase looks from downstairs.
![]()
The staircase upstairs begins by the D. The ceiling will still be quite high, but slanted after the first step.
I blocked out the corner because it’s unusable space.
There’s no contest as I see it; this is a far more gracious placement of the staircase.
Incidentally, please ignore the downstairs bathroom for now. Yes, I stuck my bathroom in there. lol
Okay, that’s all for tonight.
I hope this wasn’t too confusing. Please let me know what you think.
For next time, I’ll edit this portion, and then I’ll add the furniture in and anything else you’d like to see.
xo,

*********************************************************
Part 3 Begins Here
Saturday, Jan. 17, 2026
Hi Everyone,
Thank you for your input. This is part 3 and I believe this will be the final installment to complete the one-bedroom condo turned into a two-bedroom with a lot more storage and hopefully a much better staircase, and laundry center!
Before we get into the furnishings, I want to address something regarding what constitutes a legal bedroom.
It came up in the comments that a bedroom must have a closet to be considered legal.
While a bedroom requiring a closet might be true in certain local jurisdictions, the International Building Code (IBC) and International Residential Code (IRC) do not require a bedroom to have a closet.
The code prioritizes health and safety, egress, and minimum size/ventilation. However, it’s fine if you throw all of your stuff onto the floor. ;]
Still most realtors do expect rooms listed as a bedroom to have at least one closet. So, it is best to check on the requirements.
Below are the minimum code requirements for bedrooms:
- Minimum Size: Usually around 70-80 square feet
- Minimum ceiling height of 7 feet.
- At least one Egress Window large enough for escape or rescue + Ventilation.
One other thing to consider is that buyers love the idea of a spare bedroom. However, if it’s strictly a spare bedroom, or doing double-duty as a bedroom/office, den, or library, the necessity to have a closet isn’t quite the same. 

Still, I would always put a closet in a bedroom because it could be a liability in the future.
Okay, let’s look at the furnishing plan.
I did the plan before I changed the staircase. I don’t believe it changes anything significantly for the living areas, but it does for the entry. We’ll go over the entry again in a sec.
An important point to consider is to hold off on ordering specific pieces of furniture unless you are absolutely positive that the walls will be in a certain spot.
![]()
I didn’t add every dimension for the floor plan, but you can get a good idea knowing that each square of the grid is one square foot. All of the gold dots stand for either flush-mount ceiling lights or recessed lights. The unit comes with numerous recessed downlights. The gold half-rounds attached to the walls are either sconces or picture lights.
The area by the two chairs in front of the fireplace, the round gold dots are floor lamps, and the blue and white round things are garden stools.
Let’s move on to the den/2nd bedroom.
There was a question whether this space is large enough to accommodate the necessary furniture for a bedroom.
That’s a terrific question, and it makes the case for the wisdom of creating a furniture plan before renovation commences. Even if the plan changes, and it very well may, it is important to have a starting point and then make changes before building commences.
So, I created three more plans. Please note that these are not as complete as the one above and might have some out-of-place elements, as I forgot to remove them! For now, please focus only on the den at the lower left side of the drawing.
![]()
The first image (above) shows the 84″ sleeper opened up.
The extra chairs were brought back into the dining area, and the coffee table was moved out. The newly closed off den/bedroom might be a wonderful place to do two small square coffee tables, for example, tow that are 20″-24″ square x 15″-17″ high. Those will be easier to move and store somewhere downstairs when the company is visiting.
![]()
Option 2 (above) shows a permanent bedroom situation with a full-sized bed.
The piece on the left is a dresser.
The console could be a few inches deeper and be another dresser– max depth, 20″. That isn’t a major path and as long as there’s 18″, one can easily walk through the space. Right now, it’s about 28,” and the console is 12″.
I prefer that the front legs of dressers, chests and end tables are not on the rug, but it’s not the end of the world if they are.
If this is unavoidable, it’s best to do a low level natural fiber rug.
Another thought I have about storage. Let’s say the person inhabiting this bedroom requires more storage; they could take over the double closet in the living room.
![]()
The last version would be for a single person, like a young child. At the top, the red square is a desk,k and the long brown rectangle is a long dresser.
Nobody will be doing cartwheels in this bedroom, but we can see with 100% certainty that our furniture will fit without creating a hazard or blocking the door or closet.
Someone wrote me regarding an alternative entrance giving more space for the pantry.
I love this kind of thinking because it explores other options. Sometimes it takes a while to see the best design that improves the functionality, but is also the most beautiful. This isn’t exactly what she had in mind. (below) While the pantry certainly looks more expansive, there’s no room for shelves because of the doorway.
So, it’s creating a walk-in closet situation, but leaves less space in the hallway. I’d rather have the space in the hallway rather than “closeting” it away. (pun intended)
![]()
True, the bathroom has a bit more space for the door; however, again, I would rather have the space in the hall as it adds interest to the entry.
Then, in the version with the L-shaped staircase, there was another comment asking if the pantry wall could line up with the wall to the bathroom.
![]()
Y
es, it could, but then the door to the pantry will either be off-center to the pantry, or else not be lined up with the bathroom door.
Does it have to line up?
No, it doesn’t, but lining up with the bathroom wall doesn’t need to be a consideration because that wall isn’t seen from the entry, thus there’s no basis. For the drawing, we have a vantage point that doesn’t exist in real life.

- Version 1 keeps the bathroom wall (not seen) and doors in alignment, but the pantry door is off-center in its section.
- Version 2 is the wall as I drew it. Yes, the pantry is a bit smaller, but design-wise, I think it’s a better design. However, if my client felt strongly about it, it’s not a disaster if the door is off-center,
- Number 3 is the version with the spiral staircase. It’s not possible to do this version with the L-shaped staircase because we had to move the pantry forward to have enough room for the staircase opening.
Finally, the same reader wanted the kitchen moved over to where the den is.
That’s a great idea, but…
1. That might not be possible because of codes and condo objections.
2. It might be possible, but it will be prohibitively expensive because that’s a lot of plumbing and pipes needing to be moved.
This unit is on the bottom, like mine, so technically, it probably is possible, but I don’t think, in this case, it’s worth it.
But, I almost forgot the most important reason: moving the kitchen is not a good idea.
While it’s nicer for the kitchen, it’s a disaster for the bedroom, because that space has no windows, and it is no longer a legal bedroom! It can only be a den or a library. Of course, one can still use that space as a bedroom, but technically, it will still be a one-bedroom apartment.
Okay, that’s it for the renovations.
I have not gone further with the lower level. However, if there’s enough interest, I can. That one will definitely be a new post.
In the meantime, below is the widget. While I didn’t come up with a paint color scheme, the furnishings are in a Gustavian Swedish palette of pale blue-grays, cream, white, beige, gold, rich wooden brown tones and black accents.
Please let me know if you have any other questions or thoughts regarding this lovely Back Bay Condo.

***Please check out the recently updated HOT SALES
There was a big edit for this long Martin Luther King weekend, with some of my favorite sales happening right now.
 Also, if you’re doing some shopping on Amazon, please click this Amazon affiliate link or the graphic below.
Thank you so much!
I very much appreciate your help and support!
Related Posts
All About My Moody Entry Downstairs – Was It a Mistake?
My Quest for the Perfect Mantel Mirror is Over!
How Much Does A Whole House Renovation Really Cost?
16 Magical Farrow & Ball Colors For Your Home
Yellow Walls – Why Do You Hate Them So Much?
My Renovation Mistakes + A House Tour via YouTube!
Paint Color Selection – Little Known Secrets You Need to Know!




